Elora, Ontario
September 2025

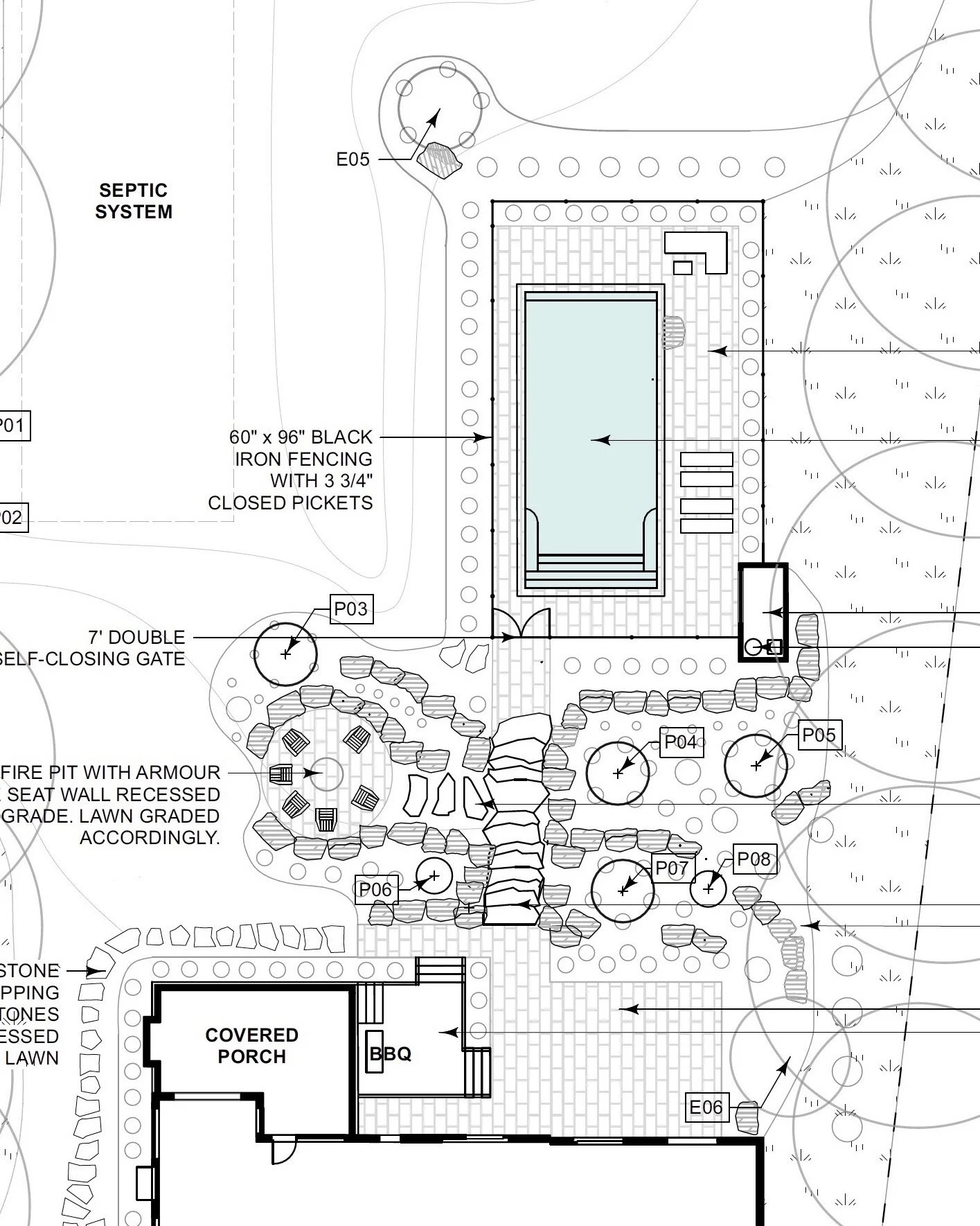
South River Pool

Location: Elora, Ontario

Date: September 2025

Client: Private

Collaborators: Centrix Building Group

This property was designed to bring a Muskoka cottage feel to the heart of Centre Wellington. Multi-level limestone armour stone terraces lead down to a modern 16’×36’ pool surrounded by Unilock Metro pavers, with a natural stone staircase connecting each level to a semi-sunk firepit—perfect for summer evenings.

Native plantings, outdoor lighting, and a custom pool shed tie the space together, creating a relaxed backyard that’s ideal for lounging and entertaining. Working alongside Centrix Building Group, the home was also transformed with a new front entrance, garage, covered porch, and updated exterior finishes.

← Previous Project